1 Columbus Ave 403 Ottawa
Toggle Navigation
Images
Videos
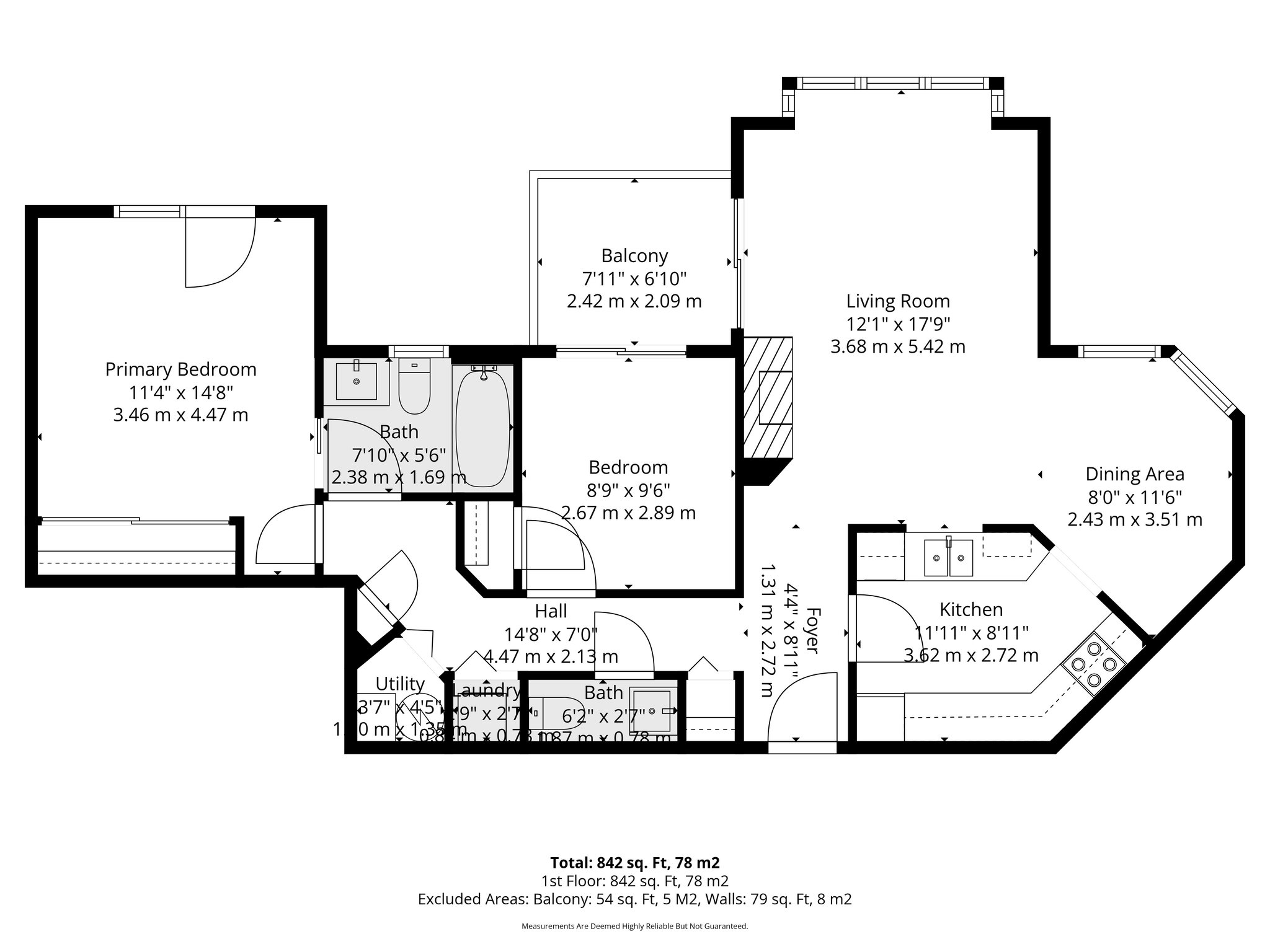
Floor Plans
Map
1 Columbus Ave 403
Ottawa, ON K1K 1R2
Scroll to Content
Images
Slideshow
Photo Grid
Hide
Previous
Next
Show more
Videos
Floor Plans
Slideshow
Photo Grid
Hide
Previous
Next