501 Rue Wilbrod St Ottawa
Toggle Navigation
Images
Floor Plans
Map
501 Rue Wilbrod St
Ottawa, ON K1N 5R4
Scroll to Content
Images
Slideshow
Photo Grid
Hide
Previous
Next
Show more
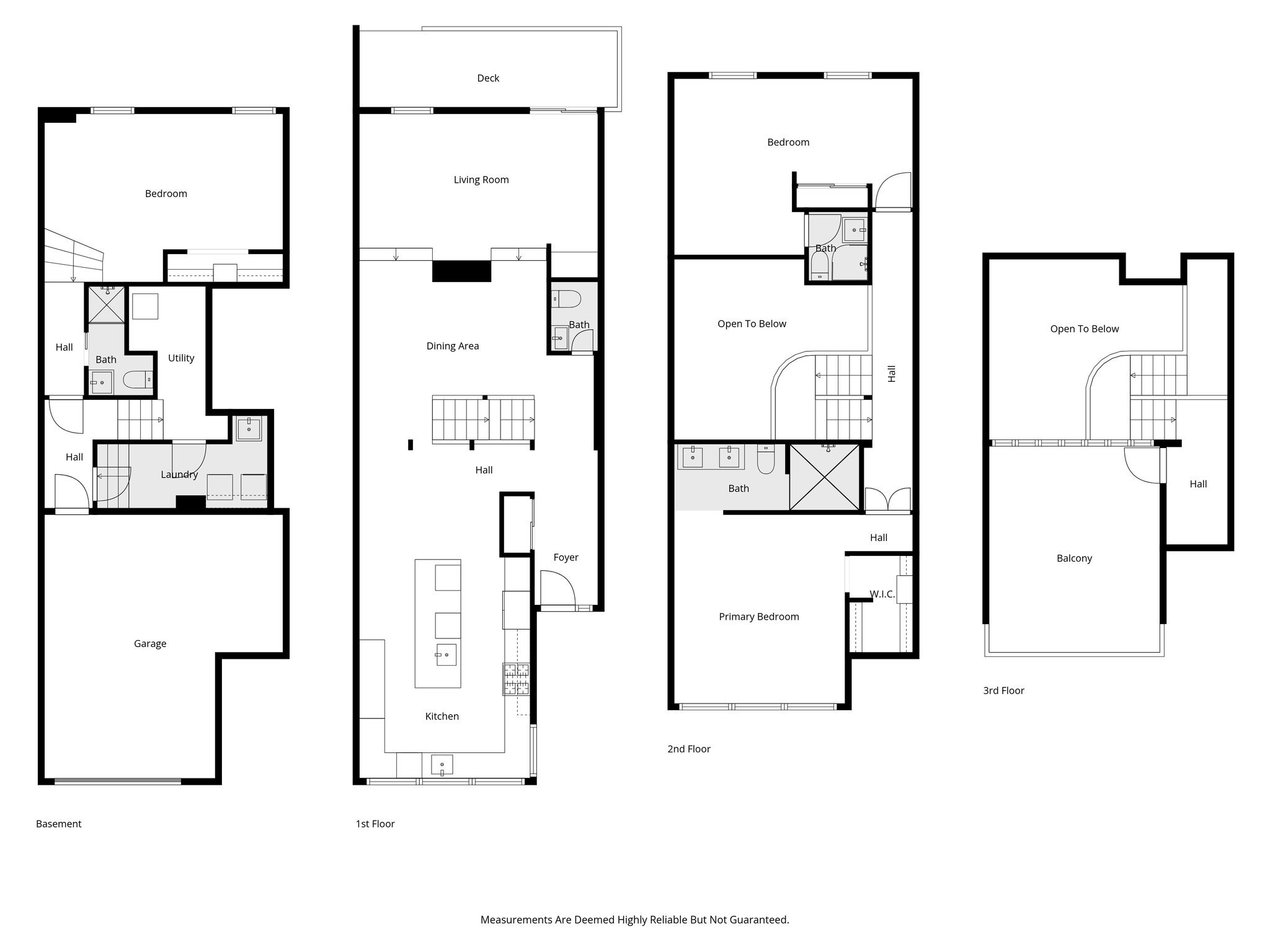
Floor Plans
Slideshow
Photo Grid
Hide
Previous
Next