17D Melrose Ave Ottawa
Toggle Navigation
Images
Videos
Floor Plans
Map
17D Melrose Ave
Ottawa, ON K1Y 1T8
Scroll to Content
Images
Slideshow
Photo Grid
Hide
Previous
Next
Show more
Videos
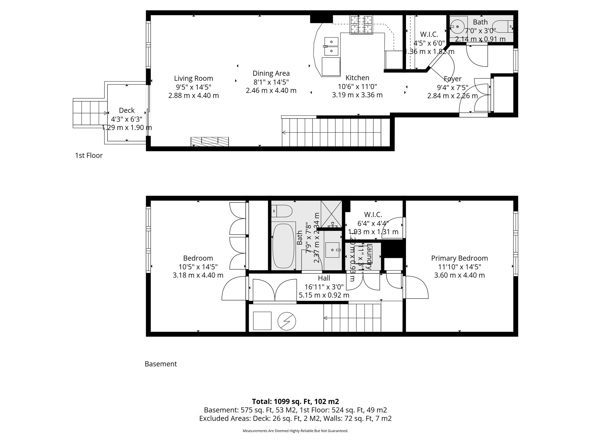
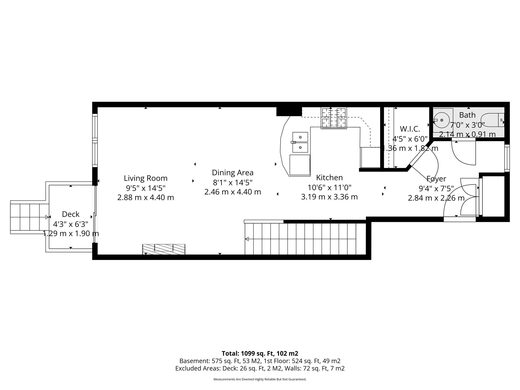
Floor Plans
Slideshow
Photo Grid
Hide
Previous
Next