2 Helm St Port Hope
Toggle Navigation
Images
Videos
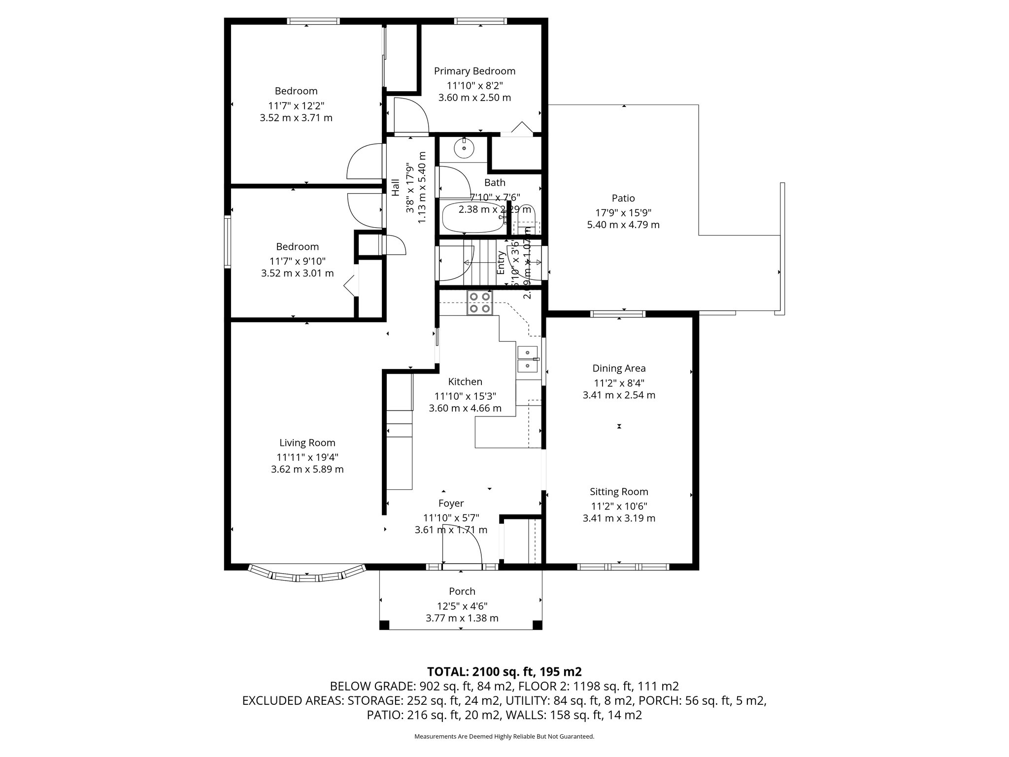
Floor Plans
Map
2 Helm St
Port Hope, ON L1A 2G7
Scroll to Content
Images
Slideshow
Photo Grid
Hide
Previous
Next
Show more
Videos
Floor Plans
Slideshow
Photo Grid
Hide
Previous
Next