321 James St Ottawa
Toggle Navigation
Images
Videos
Floor Plans
Map
321 James St
Ottawa, ON K1R 5M8
Scroll to Content
Images
Slideshow
Photo Grid
Hide
Previous
Next
Show more
Videos
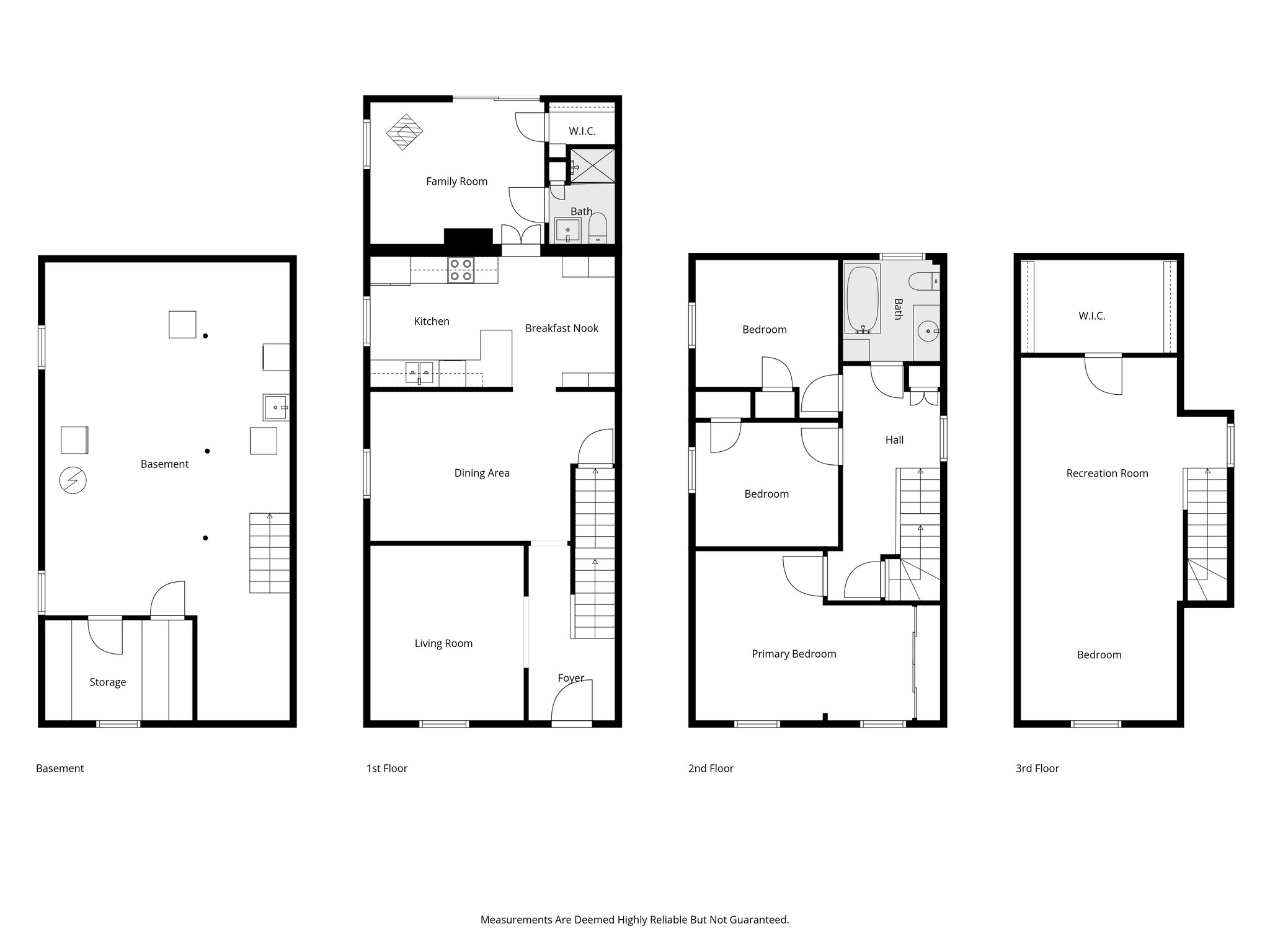
Floor Plans
Slideshow
Photo Grid
Hide
Previous
Next