364 Arlington Ave Ottawa
Toggle Navigation
Images
Floor Plans
Map
364 Arlington Ave
Ottawa, ON K1R 6Z3
Scroll to Content
Images
Slideshow
Photo Grid
Hide
Previous
Next
Show more
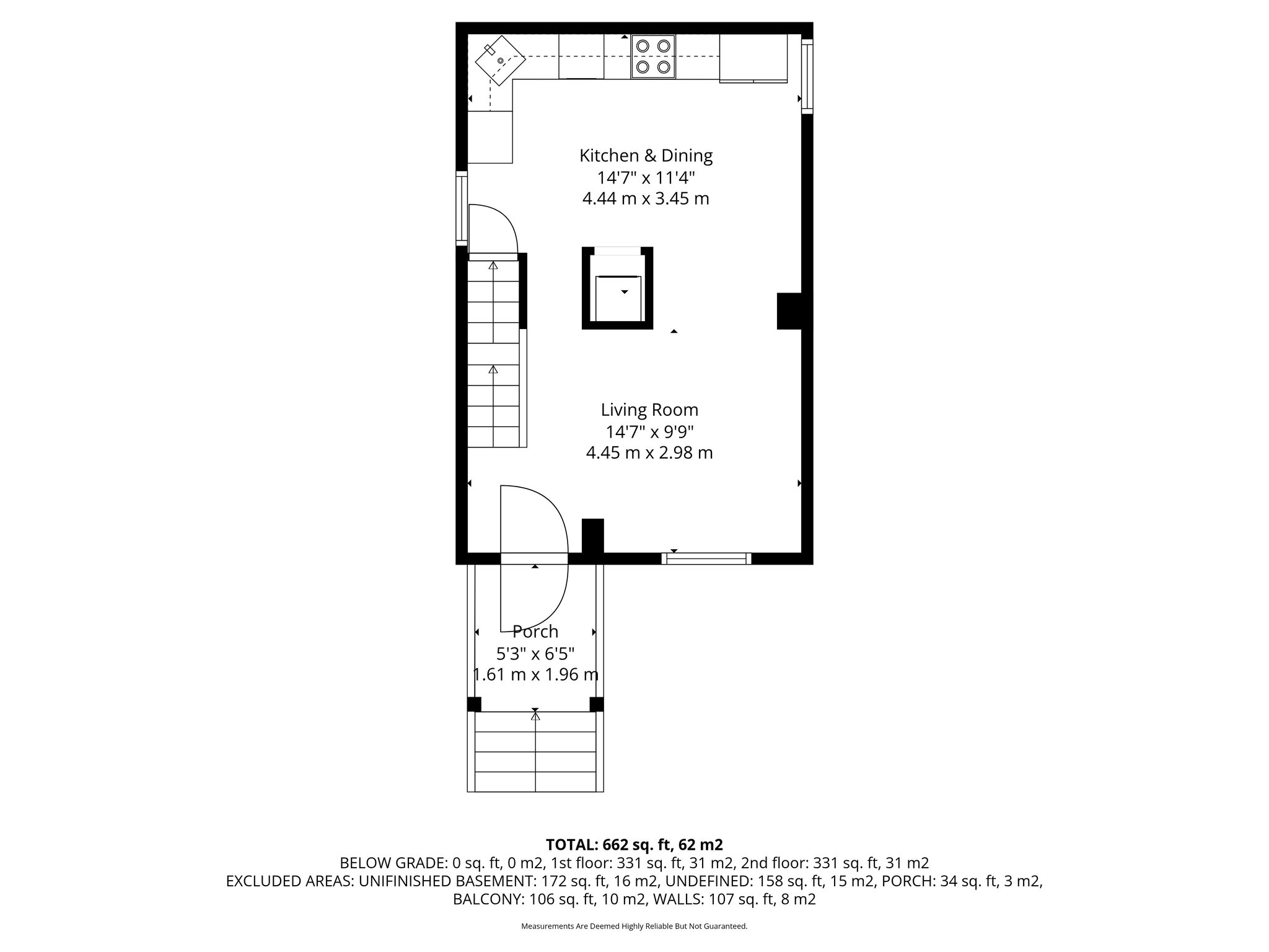
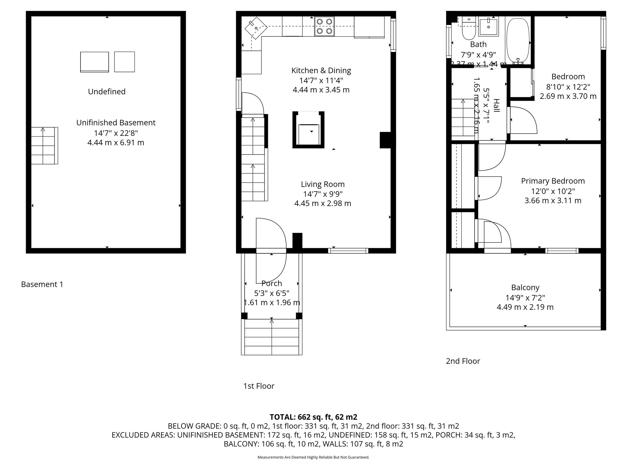
Floor Plans
Slideshow
Photo Grid
Hide
Previous
Next